Home
Story
Projects
Commercial & Industrial
International Projects
Upcoming
Planning
Educational & Interiors
Civic & Religious
Residential
Contact
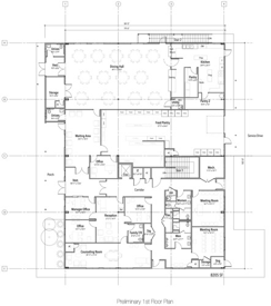
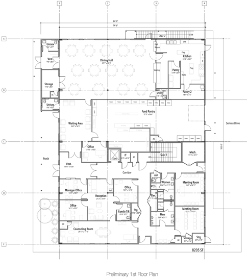
MARBLE FALLS MISSION CENTER
Mission Center
Marble Falls, Tx
Multi-Use Building- 16,400 SF