Home
Story
Projects
Commercial & Industrial
International Projects
Upcoming
Planning
Educational & Interiors
Civic & Religious
Residential
Contact
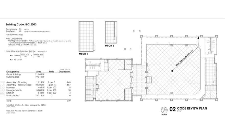
SCHERTZ CIVIC CENTER
New Civic Center
Schertz, Tx